Residenza la Fontana
Residenza la Fontana
Arcore Fraz. Cascina del Bruno Via Meucci ang. Via G. Galilei
Complesso residenziale composto da n. 5 mini-palazzine composte da bilocali, trilocali e quadrilocali.
Impianto centralizzato in pompa di calore.
Classe energetica: CLASSE “A”
Venduti n. 3 appartamenti
PALAZZINA A
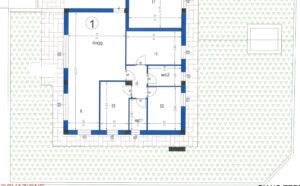
QUADRILOCALE PIANO TERRA N° 1 con GIARDINO
TRILOCALE PIANO TERRA N° 3 con GIARDINO
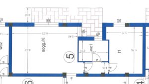
BILOCALE PIANO PRIMO N° 5
ATTICO PIANO SECONDO N° 7
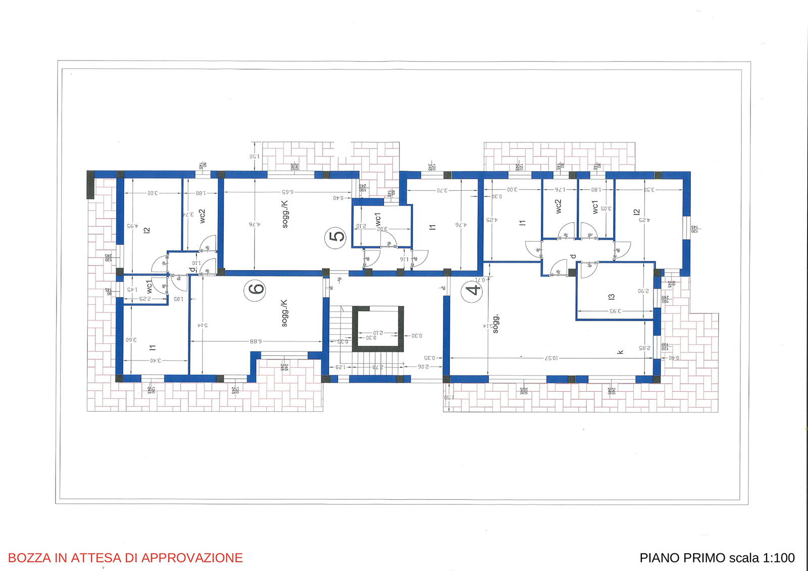
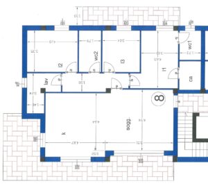
PIANO SECONDO : Mq 158,00
INGRESSO
SOGGIORNO con terrazzo
CUCINA con terrazzo
DISIMPEGNO
LAVANDERIA
CAMERA DOPPIA
BAGNO PADRONALE
CAMERA SINGOLA con terrazzo
STUDIO con terrazzo
CAMERA MATRIMONIALE con bagno in camera e cabina armadio e terrazzo
TERRAZZI Mq 65,00
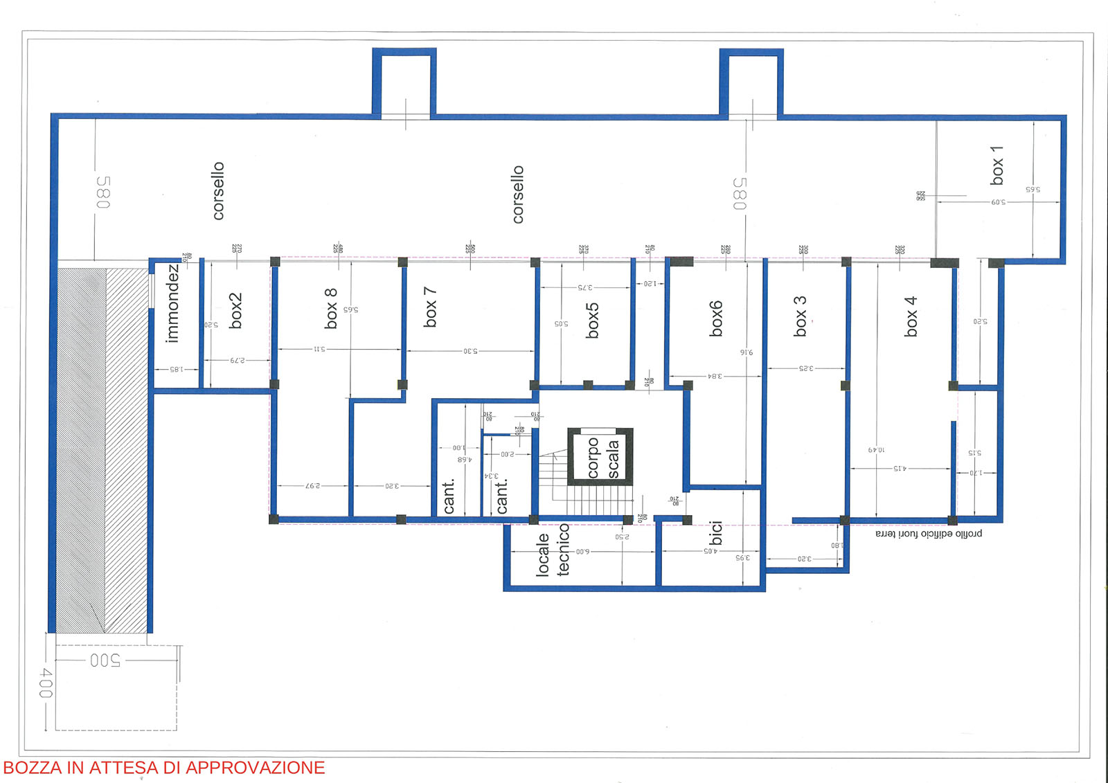
BOX DOPPIO IN LARGHEZZA NR.7 Mq 45,00
CANTINA COMPRESA
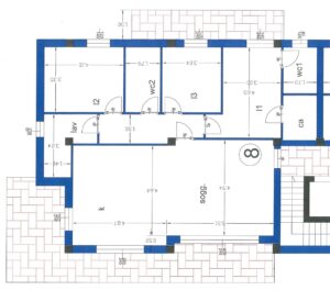
ATTICO PIANO SECONDO N° 8
PALAZZINA B
QUADRILOCALE PIANO TERRA N° 1 con GIARDINO
QUADRILOCALE PIANO PRIMO N° 4
ATTICO PIANO SECONDO N° 7
PIANO SECONDO : Mq 158,00
INGRESSO
SOGGIORNO con terrazzo
CUCINA con terrazzo
DISIMPEGNO
LAVANDERIA
CAMERA DOPPIA
BAGNO PADRONALE
CAMERA SINGOLA con terrazzo
STUDIO con terrazzo
CAMERA MATRIMONIALE con bagno in camera e cabina armadio e terrazzo
TERRAZZI Mq 65,00
BOX DOPPIO IN LARGHEZZA NR.7 Mq 45,00
CANTINA COMPRESA


















