Residenza Il Salice

Residenza Il Salice

Monza - Via Confalonieri

N°1 minipalazzina e n.3 villette

Impianto centralizzata in pompa di calore per la palazzina
Impianto in pompa di calore autonomo per le villette

Certificazione energetica: CLASSE “A”

VENDUTI N°7 appartamenti e n°1 villetta

LOTTO A PALAZZINA

UNITA' ABITATIVE LOTTO A

LOTTO B VILLETTE

UNITA' ABITATIVE LOTTO B

VILLA n.1 con GIARDINO e TERRAZZI

PIANO TERRA Mq 59,00INGRESSO
SOGGIORNO
CUCINA
BAGNO di servizio
Scala in muratura per accesso ai piani superiori/interrato

PIANO PRIMO Mq 59,00
DISIMPEGNO
BAGNO PADRONALE
CAMERA SINGOLA con balcone
CAMERA MATRIMONIALE con bagno in camera
Scala in muratura per accesso ai piani superiori/terra

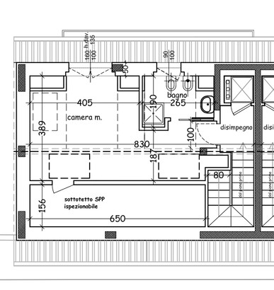
PIANO MANSARDATO ABITABILE Mq 59,00
CAMERA MATRIMONIALE
BAGNO PADRONALE
GIARDINO e marciapiedi Mq 70,00

GIARDINO e MARCIAPIEDI Mq 71,00

TERRAZZI Mq 9,00

BOX DOPPIO in larghezza n.11 Mq 35,00

VILLA n.3 con GIARDINO e TERRAZZI

PIANO TERRA Mq 59,00
INGRESSO
SOGGIORNO
CUCINA
BAGNO di servizio
Scala in muratura per accesso ai piani superiori/interrato

PIANO PRIMO Mq 59,00
DISIMPEGNO
BAGNO PADRONALE
CAMERA SINGOLA con balcone
CAMERA MATRIMONIALE con bagno in camera
Scala in muratura per accesso ai piani superiori/terra

PIANO MANSARDATO ABITABILE Mq 59,00
CAMERA MATRIMONIALE
BAGNO PADRONALE

GIARDINO e MARCIAPIEDI Mq 161,00

TERRAZZI Mq 9,00

BOX DOPPIO in larghezza n.12 Mq 39,00

CONTATTI