Residenza i gigli

Residenza i Gigli

Besana Brianza Via Beato Angelico

N.1 mini-palazzina residenziale composta da trilocali e quadrilocali. 

Impianto autonomo in pompa di calore.

Classe energetica: CLASSE “A”

VENDUTI N° 1 appartamenti

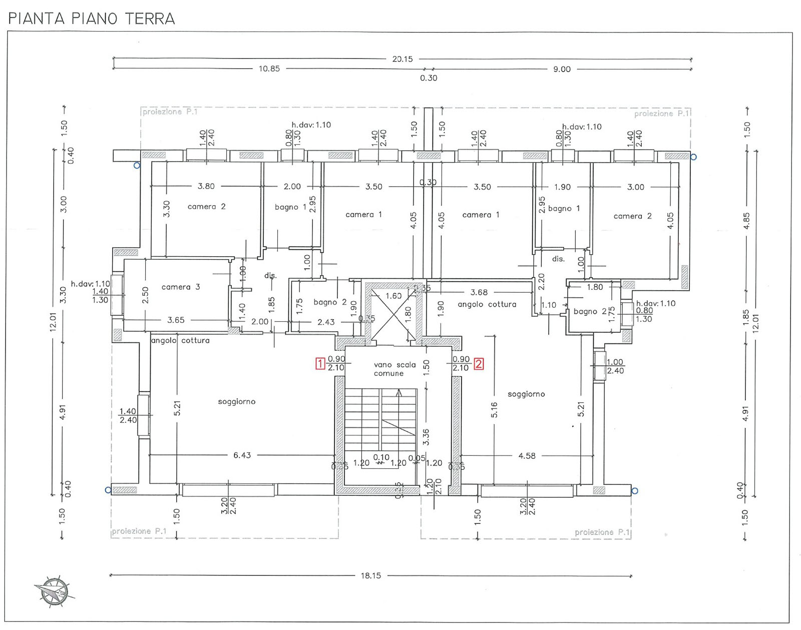
QUADRILOCALE PIANO TERRA N° 1 con GIARDINO

PIANO TERRA : Mq 103,00
INGRESSO
SOGGIORNO con portico
CUCINA
DISIMPEGNO
CAMERA MATRIMONIALE con bagno in camera
BAGNO PADRONALE
CAMERA n.1
CAMERA n.2

GIARDINO e PORTICI e MARCIAPIEDI Mq 370,00

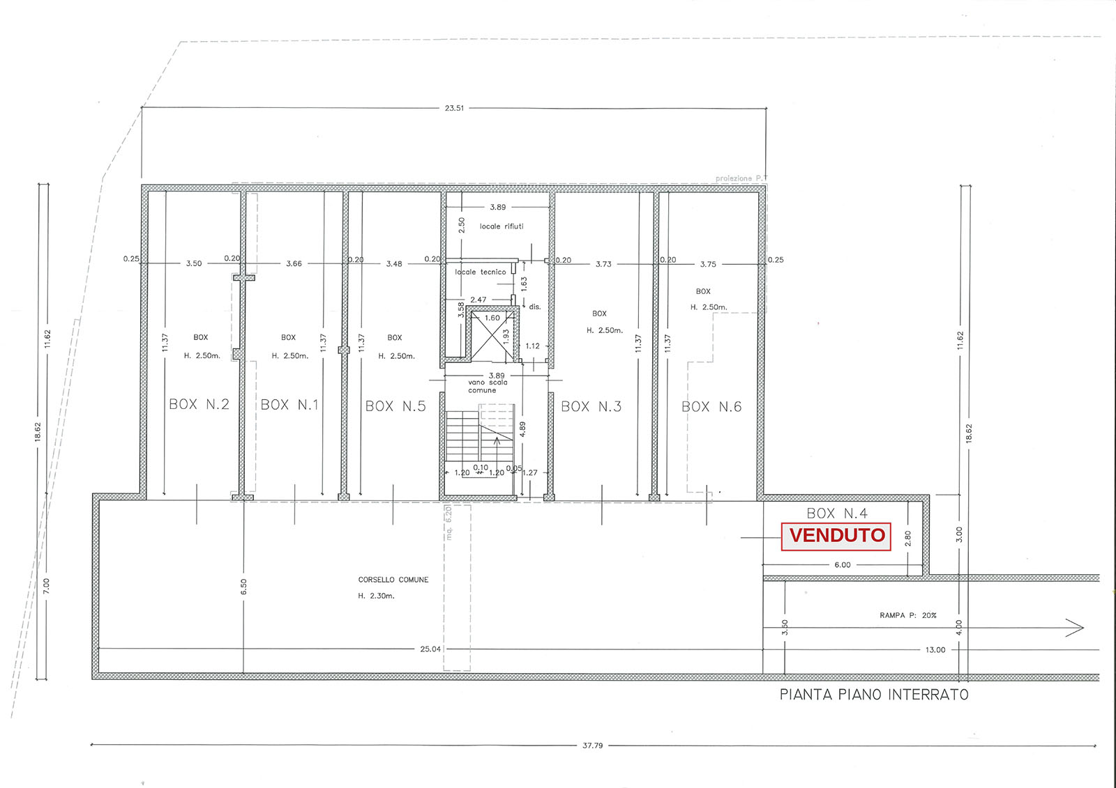
BOX DOPPIO n.1 Mq 45,00

TRILOCALE PIANO TERRA N° 2 con GIARDINO

PIANO TERRA : Mq 86,00
INGRESSO
SOGGIORNO con portico
CUCINA
DISIMPEGNO
CAMERA MATRIMONIALE
BAGNO PADRONALE
CAMERA
BAGNO DI SERVIZIO

GIARDINO e PORTICI e MARCIAPIEDI Mq 320,00

BOX DOPPIO n.2 Mq 40,00

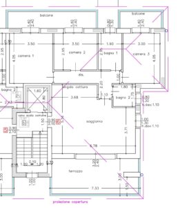
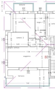
QUADRILOCALE PIANO PRIMO N° 3

PIANO PRIMO : Mq 113,00
INGRESSO
SOGGIORNO con terrazzo
CUCINA
DISIMPEGNO
CAMERA n.1 con balcone
BAGNO PADRONALE
CAMERA n.2 con balcone
CAMERA MATRIMONIALE con balcone
BAGNO DI SERVIZIO

TERRAZZI Mq 43,00

BOX DOPPIO n.3 Mq 45,00

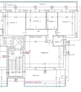
TRILOCALE PIANO SECONDO N° 5

PIANO SECONDO : Mq 80,00
INGRESSO
SOGGIORNO con terrazzo
CUCINA
DISIMPEGNO
CAMERA
CAMERA MATRIMONIALE con balcone
BAGNO PADRONALE
BAGNO DI SERVIZIO

TERRAZZI Mq 33,00

BOX DOPPIO n.5 Mq 40,00

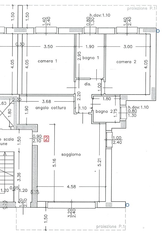
QUADRILOCALE PIANO SECONDO N° 6

PIANO SECONDO : Mq 103,00
INGRESSO
SOGGIORNO con terrazzo
CUCINA
DISIMPEGNO
CAMERA MATRIMONIALE con balcone
CAMERA n.1 con balcone
BAGNO PADRONALE
CAMERA n.2 con balcone
BAGNO DI SERVIZIO

TERRAZZI Mq 41,00

BOX DOPPIO n.6 Mq 45,00

CONTATTI